Otros trabajos

 

OBRA NUEVA Y REHABILITACIÓN
Oficinas Embutidos Rodríguez. León Vivienda en Plaza Mayor. Cuenca Vivienda entre medianeras. Cuenca
Vivienda para guardas. Cuenca Jardín y piscina privada. Cuenca Vivienda con jardín. León
Fundación Virgen de la Fuensanta. Guadalajara Guardería en Las Tablas (concurso). Madrid Ampliación de supermercado. León
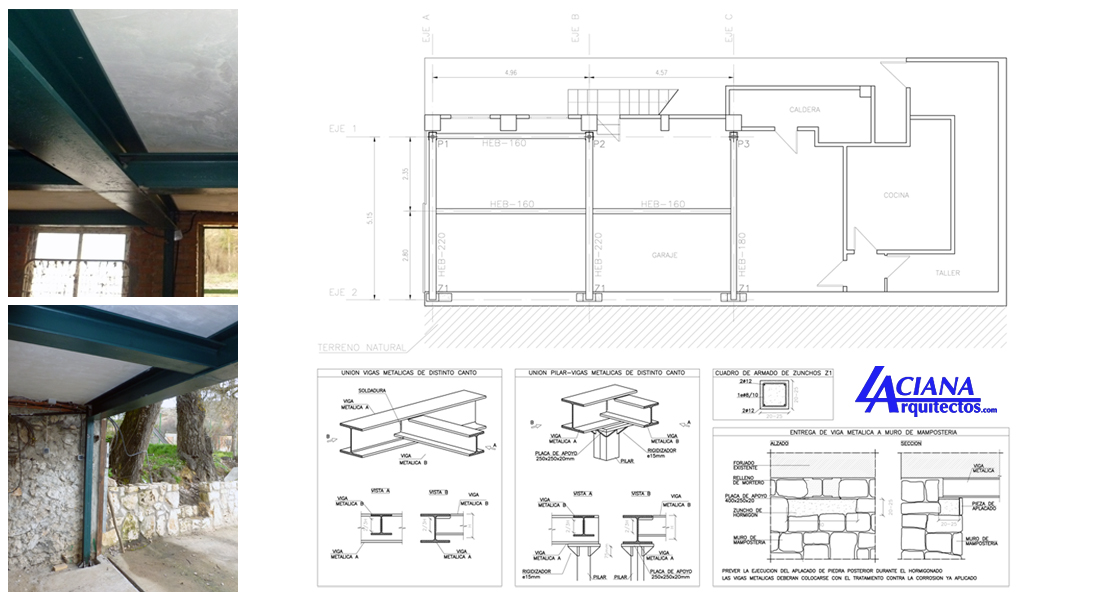
Edificio residencial. León Vivienda accesible. Guadalajara Nave industrial. Guadalajara
Pistas deportivas. Cuenca Locales comerciales. León 
 

REFORMA

Vivienda C/Alberto Alcocer. Madrid Vivienda C/Rosselló. Barcelona Vivienda C/Collado de Marichiva. Madrid
Inserción de ascensor en bloque viviendas. León Dos viviendas adosadas. Sótano y porche. Madrid Vivienda C/ Palacio Valdés. Asturias
Vivienda con despacho C/Ferrán González. Madrid Edificio de oficinas C/María de Molina. Madrid División de vivienda en dos C/Atocha. Madrid
Vivienda C/Santa Teresa. Asturias Vivienda en esquina. León Zona de servicio de vivienda C/Tebas. Madrid
Terraza Vivienda. León     Altar en iglesia parroquial. Cuenca Cubierta en edificio de viviendas /C. La Masó. Madrid
Vivienda C/Reina Mercedes. Madrid Dos viviendas Av. de la Perla. Madrid Vivienda C/Sirio. Madrid
Urbanización C/Marbella. Madrid Farmacia C/ Colón. Madrid Farmacia C/Hortaleza. Madrid
Local Comercial Plaza Madrid. Valladolid Oficinas en nave industrial. Madrid
 

VARIOS

Evaluación de daños en finca del Ministerio de Medio Ambiente. Toledo Peritación de desplome de cubierta. Pº de Extremadura. Madrid Peritación Comunidad de Vecinos. Av. de la Albufera. Madrid
Redacción de documentación para licencia. Guadalajara Tasación de vivienda. Guadalajara Valoración de dos viviendas. Cuenca.
Segregación de parcela. Cuenca Dirección facultativa obras según ITE. C/ Ibiza. Madrid Rehabilitación de estructura chalet. Cuenca
Estudio de viabilidad viviendas y locales. León Peritación de humedades en sótano. León Demolición de dos viviendas. Guadalajara
Redacción de documentación para registro y catastro. Realización de inspección técnica de edificios (ITE). Realización de certificado de eficiencia energética.
Realización de Informe de Evaluación de Edificios (IEE). 

 

Uso de cookies

Este sitio web utiliza cookies para que usted tenga la mejor experiencia de usuario. Si continúa navegando está dando su consentimiento para la aceptación de las mencionadas cookies y la aceptación de nuestra política de cookies, pinche el enlace para mayor información.plugin cookies

ACEPTAR
Aviso de cookies